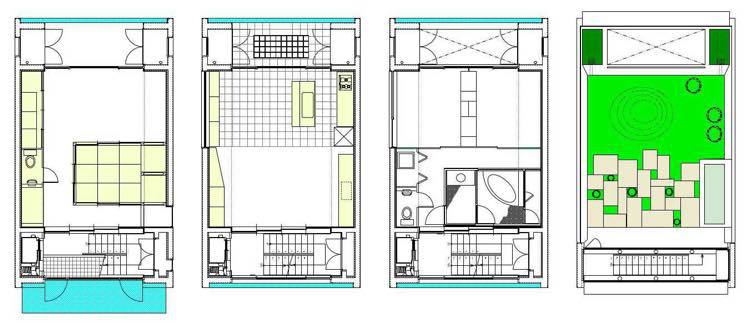
「CELL」は、パーツを交換することでプランが変化します。本体となる「BODY」は柱なしの空洞です。若い標準家族の場合、子供たちが独立するまでに3回プランを変えます。自分自身でプランニングすることで喜びに満ちた生活を手に入れます。また、リセットし次の世代にも渡すこともでき、標準家族以外の家族構にも柔軟に対応します。



住宅を内部から考える
HOUSE Hは、「CELL」住宅を想定し、実際にお客様が住宅をデザインされるようにプログラムしました。まず、敷地に合うスケルトンの「BODY」模型が提示され、「WALL」や家具のミニチュア模型を並べ替えながら同時に、インテリアショプの家具を試しながらインテリアコーディネイターさんとディスカッションを重ね、室内の素材・色彩・照明・家具も決められていきました。