地方都市の計画道路拡張による新しく生まれ変わる駅前商店街の一角にある洋服店です。特別な形態規制のない地域で、鉄とコンクリートの近代的て自由な形態の建物が並ぶ中に木造であることが一目でわかる建物です。柱・梁・床・階段を全て木質にし、その上に、ガラスと薄い壁をまとった地域に開かれた店舗です。


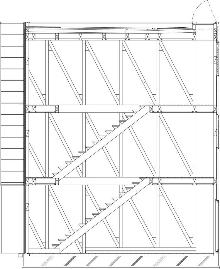
木造モノコック構造
外骨格の構造体で内柱がないようにしまた。そのため、「レの字」型の構造体を横に並べ硬い床で固め、3層に積み上げていきました。「レの字」型が一番理の叶った力の流れで、力を視覚化した時の美しさを証明します。

鈴蘭がこの通りの名称にあり、店名にも鈴蘭が使われていることで建物の表皮に鈴蘭のグラフィクをプリントしました。

1階部分は、ガラス張りのショールームを兼ねた店舗です。奥のスペースで仕立てを行います。限られたスペースを有効に使うため作り付けの家具を多用してコンパクトに収めています。

2階部分はショールーム兼倉庫です。ハンガー代わりの手すりが天井より伸びます。将来、カフェにもできるよう眺めのいい開口部が想定されています。

3階は、休憩スペースです。キッチンやシャワールームを装備しています。

階段部分の断面図。地震力より風圧力の負担が大きかったために、直接べた基礎に補助金具によって柱を緊結されています。

構造体が表も裏にも現れるデザインで接合部のディテールをシンプルにするために、大工さんの刻みの技術に頼りました。補助金具も、外に見えないように、長いドリルで木材の中に装着されています。
住宅作品を見る